技术数据
|
型号 |
振次 |
激振力 |
功率 |
电流 |
重量 |
|
r/min |
N |
Kw |
A |
Kg |
|
|
SVM-3-4 |
1450 |
3000 |
0.12 |
0.37 |
21 |
|
SVM-5-4 |
5000 |
0.25 |
0.78 |
27 |
|
|
SVM-8-4 |
8000 |
0.4 |
1.21 |
42 |
|
|
SVM-15-4 |
15000 |
0.75 |
2.25 |
54 |
|
|
SVM-20-4 |
20000 |
1.1 |
2.76 |
85 |
|
|
SVM-30-4 |
30000 |
1.5 |
3.3 |
130 |
|
|
SVM-50-4 |
50000 |
2.2 |
6.68 |
180 |
|
|
SVM-80-4 |
80000 |
3.7 |
8.7 |
260 |
|
|
SVM-100-4 |
100000 |
6.3 |
12.5 |
350 |
|
|
SVM-120-4 |
120000 |
8 |
16.6 |
435 |
|
|
SVM-160-4 |
160000 |
10 |
22 |
600 |
|
|
SVM-200-4 |
200000 |
12 |
22.8 |
650 |
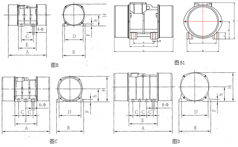
安装尺寸
|
型号 |
图号 |
A |
B |
H |
h |
C |
D |
φ |
E |
F |
|
mm |
mm |
mm |
mm |
mm |
mm |
mm |
mm |
mm |
||
|
SVM-3-4 |
B1 |
322 |
183 |
185 |
80 |
40 |
130 |
11 |
70 |
16 |
|
SVM-5-4 |
B1 |
350 |
212 |
215 |
95 |
120 |
150 |
13 |
150 |
30 |
|
SVM-8-4 |
B1 |
370 |
245 |
235 |
110 |
130 |
170 |
17 |
174 |
40 |
|
SVM-15-4 |
B |
450 |
270 |
220 |
110 |
160 |
220 |
21 |
210 |
42 |
|
SVM-20-4 |
B |
515 |
320 |
276 |
140 |
190 |
260 |
25 |
251 |
45 |
|
SVM-30-4 |
B |
505 |
350 |
331 |
170 |
180 |
280 |
32 |
251 |
55 |
|
SVM-50-4 |
B |
580 |
390 |
340 |
165 |
160 |
310 |
38 |
286 |
30 |
|
SVM-80-4 |
C |
730 |
470 |
386 |
190 |
125 |
380 |
38 |
340 |
33 |
|
SVM-100-4 |
C |
790 |
520 |
210 |
425 |
140 |
440 |
38 |
410 |
35 |
|
SVM-120-4 |
C |
830 |
520 |
210 |
425 |
140 |
440 |
38 |
440 |
40 |
|
SVM-160-4 |
D |
930 |
550 |
455 |
220 |
118 |
460 |
38 |
460 |
40 |
|
SVM-200-4 |
D |
930 |
550 |
455 |
220 |
118 |
460 |
38 |
460 |
45 |


